上牧ドリームマンション 201

情報更新日: 2026年02月09日

上牧ドリームマンション 201

8.2万円 (管理費・共益費3,000円)

情報更新日: 2026年02月09日

敷金/保証金
0.0ヵ月 / -
礼金
2.0ヵ月
敷引/償却
-
築年数
築47年
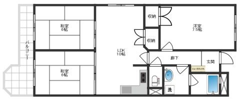
間取り
3LDK
専有面積
61.45㎡
階建
2階/3階建
向き
南西
種別
マンション
構造
RC
所在地
大阪府三島郡島本町高浜2丁目
最寄駅
阪急京都線 / 上牧駅 歩9分
阪急京都線 / 水無瀬駅 歩12分
JR東海道本線 / 島本駅 歩20分

この物件についてお問合せ

お問合せ時にこちらのコードをお伝えください。
[お問合せコード:734]

ホームメイトFC高槻駅前店 / 営業時間:9:30~19:00

月額料金
  • 賃料
    82,000円
  • 共益費
    3,000円
  • 駐車場
    11,000円
合計
96,000円
パノラマ
物件情報に戻る物件情報に戻る
 
拡大
縮小
左へ移動
右へ移動
上へ移動
下へ移動
再生
停止
フルスクリーンフルスクリーン
 
物件概要
ペットペット
バス・トイレ別バス・トイレ別
エアコンエアコン
室内洗濯機置場室内洗濯機置場
ネット無料ネット無料
オートロックオートロック
新築・築浅新築・築浅
南向き南向き
設備条件 南向き/分譲賃貸/2階以上/角部屋/バルコニー/駐輪場/バイク可/敷地内ゴミ置場/システムキッチン/ガスコンロ/コンロ2口/バス・トイレ別/追焚機能/温水洗浄便座/シャワー付き洗面台/洗面所独立/室内洗濯機置場/都市ガス/エアコン/シューズボックス/CATV/防犯カメラ/モニター付きインターホン/保証人不要/2人入居可/初期費用カード決済可/IT重説対応物件/2駅利用可/2沿線利用可/3駅以上利用可/即入居可/定期借家を含まない/振分/クロゼット/眺望良好/通風良好/陽当り良好/独立部屋
現状 空室
情報更新日 2026年02月09日 次回更新日 情報更新日より8日以内
備考 -
設備条件 南向き/分譲賃貸/2階以上/角部屋/バルコニー/駐輪場/バイク可/敷地内ゴミ置場/システムキッチン/ガスコンロ/コンロ2口/バス・トイレ別/追焚機能/温水洗浄便座/シャワー付き洗面台/洗面所独立/室内洗濯機置場/都市ガス/エアコン/シューズボックス/CATV/防犯カメラ/モニター付きインターホン/保証人不要/2人入居可/初期費用カード決済可/IT重説対応物件/2駅利用可/2沿線利用可/3駅以上利用可/即入居可/定期借家を含まない/振分/クロゼット/眺望良好/通風良好/陽当り良好/独立部屋
現状 空室
情報更新日 2026年02月09日
次回更新日 情報更新日より8日以内
備考 -
定額修繕費等 55,000円
鍵交換費 16,500円
入町費 -
町会費 -
水道代 -
CATV代 -
駐輪場代 -
ゴミ処理費 -
その他費用 害虫駆除:22000円/初回
定額修繕費等 55,000円 鍵交換費 16,500円
入町費 - 町会費 -
水道代 - CATV代 -
駐輪場代 - ゴミ処理費 -
その他費用 害虫駆除:22000円/初回
駐車場種別 近隣確保 駐車場までの距離 100m
駐車場料金 11,000円 駐車場備考 -
バイク置場 -
駐車場種別 近隣確保
駐車場までの距離 100m
駐車場料金 11,000円
駐車場備考 -
バイク置場 -

この物件についてお問合せ

お問合せ時にこちらのコードをお伝えください。
[お問合せコード:734]

ホームメイトFC高槻駅前店 / 営業時間:9:30~19:00

周辺環境
  • 小学校
    小学校
    島本町立第四小学校まで631m(徒歩8分)
  • 中学校
    中学校
    島本町立第一中学校まで1343m(徒歩17分)
  • 高校
    高校
    学校法人関西金光学園まで613m(徒歩8分)
  • 大学
    大学
    大阪歯科大学 楠葉学舎まで12237m(徒歩153分)
  • スーパー
    スーパー
    業務スーパーTAKENOKO上牧店まで591m(徒歩8分)
  • コンビニ
    コンビニ
    ファミリーマート 島本高浜二丁目店まで156m(徒歩2分)
  • 病院
    病院
    水無瀬病院まで755m(徒歩10分)
島本町立第一中学校まで1343m
学校法人関西金光学園まで613m
業務スーパーTAKENOKO上牧店まで591m
ファミリーマート 島本高浜二丁目店まで156m
島本町立第四小学校まで631m
大阪歯科大学 楠葉学舎まで12237m
水無瀬病院まで755m
表示する周辺環境
 
 
 
 
 
 
 
 
 
 
 
 
お気軽にお問合せ・ご相談ください

【受付時間】9:30~19:00

その他条件
火災保険加入 必須 日本共済/2200円/月
保険会社利用 必須 ナップ賃貸保証/初回総賃料60% 更新年12000円
契約期間 2年 更新料等 -
短期解約違約金
条件備考※ -
火災保険加入 必須 日本共済/2200円/月
保険会社利用 必須 ナップ賃貸保証/初回総賃料60% 更新年12000円
契約期間 2年
更新料等 -
短期解約違約金
条件備考※ -
※月額費用等の金額が入っている場合は上記総賃料に計算されておりません。
よく一緒に見られている物件
JR東海道本線/高槻 歩24分
3.9万円(管理費1000円)
3K / 40.22㎡ / 築56年
大阪府高槻市津之江町2丁目
阪急京都線/富田 歩22分
19.8万円(管理費1000円)
3LDK / 115.83㎡ / 新築
大阪府高槻市津之江町3丁目
阪急京都線/総持寺 歩31分
5.0万円(管理費11000円)
2LDK / 46.0㎡ / 築54年
大阪府高槻市牧田町
阪急京都線/富田 歩22分
17.0万円(管理費1000円)
3LDK / 105.3㎡ / 新築
大阪府高槻市津之江町3丁目
建物外観
上牧ドリームマンション 201
間取り

2階南西

8.2万円(管理費3,000円)

敷金 -

礼金 2.0ヵ月

3LDK61.45㎡

近隣確保

パノラマ

この物件についてお問合せ

[ お問合せコード:734 ]